Продам двухэтажный дом 235м кв. возле метро 23 августа (№ 22-297-348)
Цена: 330 000 $

Адрес: Шатиловская ул., Харьков, Харьковская, Павлово Поле
Характеристики
| Цена: | 330 000 $ |
|---|---|
| № объекта: | 22-297-348 |
| Тип: | дом |
| Этажей: | 2 |
| Спален: | 3 |
| Площадь дома: | 235 м2 |
| Участок: | 4 сот |
Описание
Недалеко от метро 23 августа продается новый двухэтажный дом S= общая 235м.кв. с участком 4 сотки.
Фундамент: ФБС, монолитные пояса на каждом этаже.
Стены наружные: керамоблок и облицовочный кирпич ручной формовки СБК.
Межэтажные перекрытия - Плиты ж/б
Кровля плоская утеплённая, по периметру парапет облицован терм доской.
Отмостки вокруг дома и всё площадки под тротуарной плиткой армированы и забетонированы. Забор выполнен из облицовочного кирпича Керамея
Ворота автоматические откатные «Дельта».
Мощение площадок тротуарная плитка «Золотой мандарин». Озеленение участка. Бассейн бетонная чаша 4х8 м. Внутренние работы: оштукатурены все стены, выполнена разводка электрики, стяжка пола, тёплый пол на 1-м этаже, на 2-м отопление алюминиевые радиаторы, смонтирована металлоконструкция лестничного марша, охранная сигнализация, окна 'Rehau' пятикамерный профиль, 2-х камерный стеклопакет.
Коммуникации: электричество10кВт, двузонный счётчик, канализация и водопровод центральные, есть скважина, газ, установлен двухконтурный котёл 'Baxi' 30кВт.
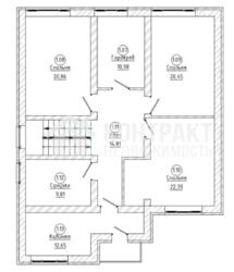
1 этаж: котельная, санузел, кухня с верандой, столовая-гостиная.
2 этаж: санузел, кабинет с балконом, гардеробная, 3 спальни.
Паркинг на 3 машины.











