Продам 1 комнатную квартиру в 16ти этажке. ЖК Гидропарк. м. Героев Труда (№ 212-026-393)
Цена: 29 900 $

Борткевича ул., 6В, Харьков, Харьковская, Журавлевка, ЖК Гидропарк
Характеристики
| Цена: | 29 900 $ |
|---|---|
| № объекта: | 212-026-393 |
| Комнат: | 1 разд |
| Этаж: | 12 / 16 лифт |
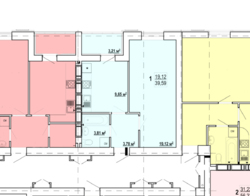
| Площадь: | 39.59 / 19.12 / 9.65 м2 |
| Санузел: | 1 совмещенный |
| Балкон: | лоджия |
| Дополнительно: | новостройка |
Описание
В поисках квартиры в новострое не испорченную ремонтом?
Предлагаю Вашему вниманию ликвидную квартиру на данном объекте.
Данный комплекс находится в самом красивом месте города Харькова. Через дорогу от комплекса находится любимый харьковчанами гидропарк, который в скором времени будут реконструировать. Вы сможете каждый день наслаждаться прогулками с семьей или Вашими любимыми питомцами на свежем воздухе. Так же по генплану предусмотрено двухэтажный комплекс для коммерции, а это значит, что супермаркет и все необходимые магазины и салоны будут у Вас в шаге от дома. Также проектом предусмотрена большая гостевая парковка и крытая многоэтажная парковка.
Квартира находится в дом №6, 3 секция, в 16ти этажном доме, общая площадь 39.59м2. В квартире уже установлены от застройщика металлопластиковые окна, радиаторы и входная железная дверь. Есть возможность установить счетчик тепла на квартиру.
Звоните, отвечу на все Ваши вопросы!






