Продажа Двух-трехкомнатная квартира в ЖК Монте-Плаза (№ 212-466-754)
Цена: 163 000 $

Науки пр., 45/3, Харьков, Харьковская, Павлово Поле, ЖК Монте Плаза
Характеристики
| Цена: | 163 000 $ |
|---|---|
| № объекта: | 212-466-754 |
| Комнат: | 3 разд |
| Этаж: | 24 / 25 лифт |
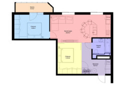
| Площадь: | 136 / 80 / 20 м2 |
| Санузел: | 2 раздельный + совмещенный |
| Балкон: | балкон |
| Дополнительно: | новостройка |
Описание
Двух -трехкомнатная квартира в ЖК Монте-Плаза свободной планировки с 2мя санузлами и 2мя балконами
Есть возможность разделить на 2 квартиры по 68 кв м
Стоимость 1й квартиры 68 м2 будет $1300 за м2 (т к она менее видовая,вид на лес,соседний корпус и просп Науки; для разделения спален нужно поставить стеклянные перегородки)
2я квартира 68м2 по $1400 за м2 (полностью видовая на лес, полноценные 2 спальни и балкон)
Есть готовое дизайнерское решение
Договор купли-продажи через банк
При разделении квартиры на 2 отдельные-ждать 10 дней для переоформления документов.
Код объекта № 2 1 2 4 6 6 7 5 4











